Przestronny dom „pod klucz” 125 m².
mazowieckie, grodziski, Osowiec
- DRUKUJ
- UDOSTĘPNIJ
- 1 590 000 zł12 927 zł/m2
- ZAPAMIĘTAJ
- Liczba pokoi:5
- Powierzchnia:123 m2
- Cena: 1 590 000 zł
Opis nieruchomości
Oferujemy wyjątkowy, w pełni wykończony dom wolnostojący, gotowy do zamieszkania, o powierzchni 125 m, położony na przestronnej działce 1000 m w spokojnej okolicy, otoczonej zielenią i lasem.
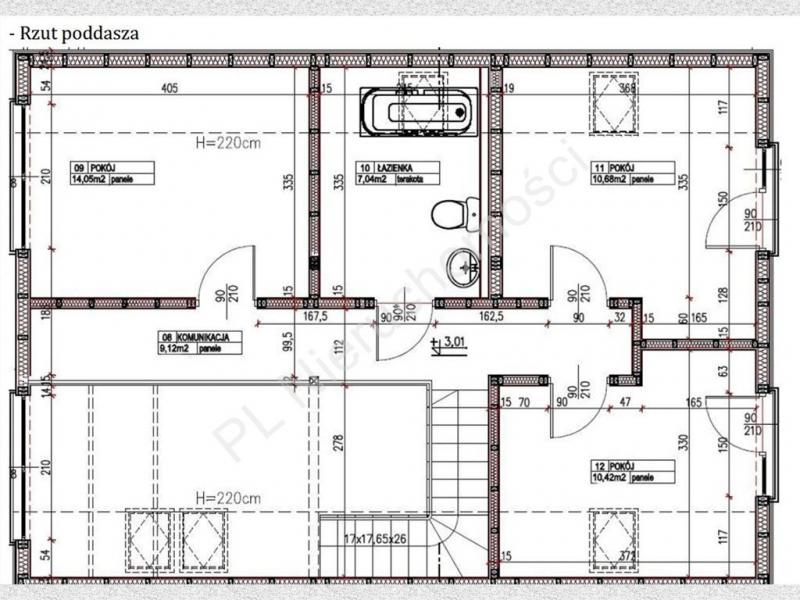
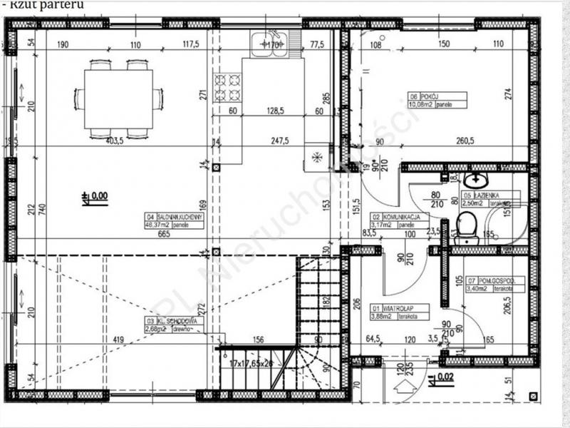
Rozkład domu:
Parter:
-Hol
-Pomieszczenie gospodarcze
-Jasny salon z wyjściem na taras
-Sypialnia / gabinet
-Łazienka
Piętro:
-Hol
-3 przestronne sypialnie
-Duża łazienka
Media: Szambo, ogrzewanie pompą ciepła, rekuperacja
Wysoki standard wykończenia gotowy do zamieszkania: podłogi z gresu i paneli, ogrzewanie podłogowe w całym domu, garaż z bramą na pilota.
Brak podatku PCC.
Doskonały dojazd do Warszawy: S8, komunikacja autobusowa
Blisko szkoły, sklepy i pełna infrastruktura niezbędna do codziennego życia
Spokojna i zielona okolica, idealna dla osób ceniących komfort i kontakt z naturą
Oddanie nieruchomości: IV kwartał 2026 r.
To idealne miejsce dla osób poszukujących nowoczesnego domu w spokojnej okolicy, z szybkim dostępem do miasta i udogodnieniami podnoszącymi komfort życia.
Zapraszam na oglądanie!
Szczegóły ogłoszenia
| Numer oferty | D-92500-6 |
|---|---|
| Typ oferty | Dom na sprzedaż |
| Cena | 1 590 000 zł (12 927 zł/m2) |
| Rynek | wtórny |
| Powierzchnia | 123 m2 |
| Pow. działki | 1 000 m2 |
| Liczba pokoi | 5 |
| Rok budowy | 2026 |
| Materiał budowy | - |
| Zabezpieczenia | system alarmowy |
| Ogrzewanie | - |
| Media | woda, szambo |
| Inf. dodatkowe | umeblowane |
Lokalizacja i okolica
| Województwo | mazowieckie |
|---|---|
| Powiat | grodziski |
| Miasto | Osowiec |
| Dzielnica | - |